Cerca per riferimento
×

🔍 Cerca per Riferimento

Inserisci il codice di riferimento dell'immobile

💡 Come trovare il codice di riferimento?
Il codice di riferimento si trova:
• Negli annunci pubblicati sui portali
• Nei documenti di presentazione dell'immobile
• Nelle email ricevute dalla nostra agenzia
• Nei cartelli esposti presso l'immobile
Palazzo in vendita - Curti
| Rif.N. 30 | Rif.T. V000200
€ 370.000
4
Locali
260 m2
Superficie
4
Bagni
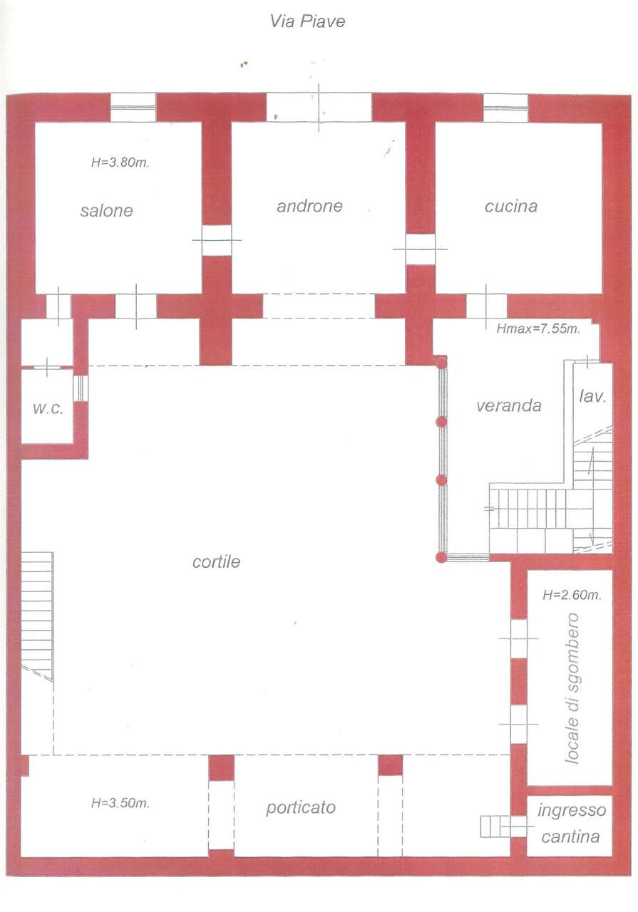
Elegante palazzo d'epoca su Via Piave a Curti. Si accede in un'ampia corte porticata pavimentata che crea uno spazio privato arioso e luminoso. L' abitazione principale è composta al piano terra da una caratteristica zona giorno che si divide in soggiorno con camino e cucina in muratura nella stanza adiacente con affaccio su strada principale. Vari ambienti di servizio e dependance sempre al piano terra aggiungono spazi funzionali. Al primo piano raggiungibile dal soggiorno, si arriva ad un'area riservata con 3 ampie ed accoglienti camere da letto matrimoniali. La camera padronale ha un bagno ed una cabina armadio contigui, mentre nel corridoio un altro comodo bagno serve le altre due camere da letto. Sempre al primo piano con accesso indipendente si raggiunge un altro ambiente di 20 mq collegato ad un suggestivo e grazioso terrazzo che affaccia sulla corte interna da un lato e sul verde dei giardini delle proprietà circostanti dall'altro. Diversi vani deposito e una caratteristica vecchia cantina completano il valore e la funzionalità di questo immobile. Necessita di manutenzione principalmente sulle facciate mentre gli interni sono in buona stato e presentano finiture di qualità: pavimentazioni in cotto nel cortile, in gres porcellanato la zona giorno, parquet nella zona notte, infissi in legno con doppi vetri, persiane in ferro, impianto d'allarme, tutto funzionale e in buono stato.

📋 Scheda Tecnica Completa

🏠 Informazioni Base
TipologiaResidenzia
Tipo ImmobileNon specificato
CategoriaResidenziale
ContrattoVendita
StatoBuono
FasciaSignorile
📐 Superficie
Superficie Totale260.00 m²
Superficie Calpestabile243.00 m²
Terrazzo61.00 m²
Balconi7.00 m²
Cantina30.00 m²
💰 Prezzo
Prezzo370.000 €
Prezzo al m²1.423 €/m²
🏡 Composizione
Vani9
Locali4
Camere4
Bagni4
Balconi6
SoggiornoSalone
CucinaAbitabile
🏢 Posizione
Piani Edificio2
OrientamentoNord Est Sud
VistaVista Giardino
Lati Liberi3
🔧 Impianti
RiscaldamentoAutonomo
Tipo ImpiantoCaldaia
CombustibileMetano
Acqua CaldaAutonoma
Classe EnergeticaG
InfissiLegno
✨ Accessori e Caratteristiche
✓ Antifurto
✓ Aria Condizionata
✓ Camino
✓ Canna Fumaria
✓ Cancello Elettrico
✓ Doppi Vetri
✓ Doppio Ingresso
✓ Ingresso Indipendente
✓ Lavanderia
✓ Passaggio Automobilistico
✓ Passaggio Pedonale
✓ Porta Blindata
✓ Ripostiglio
✓ Veranda


👤 Il tuo consulente

LR
Luigi Romano

Consulente Immobiliare
Esperto in vendite e locazioni

Contatta su WhatsApp
Risposta entro 24 ore
Compila il form sottostante per essere contattato da un nostro operatore.
Oppure chiama i nostri uffici
📞 0823 79 92 15
Riferimento Numerico Annuncio: 30
Vorrei Vendere il mio Immobile
Ho letto e accetto quanto espresso nell’informativa privacy

Proprietà Esclusive

Scopri la nostra selezione di immobili di lusso e le proprietà più prestigiose

Immobili in vendita in:



Immobili in locazione in:

Lavora con Noi

"Siamo sempre alla ricerca di nuovi talenti"

Candidati Ora

🔍 Cerchi un immobile in particolare?

Crea un alert personalizzato e ti avviseremo quando troveremo l'immobile perfetto per te

Per info:
0823 79 92 15
×

Crea il tuo Alert Personalizzato